管理有限公司分公司
一、设计概况:
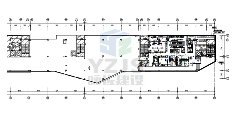
1.本项目为:XXXX食尚天地项目装饰工程 地址:XXXX青平公路
2、建设单位:上海指派餐管理有限公司沪青平公路分公司装修面积117.29m使用性质:餐饮
3、设计范围:本次设计范围为地上四层丰阴影填充区城(阴影填充区城不在设计范围)的下列部分司 平雨布置、天花布置、为面布置、墙体布置等,不更政原有系统设计,不更政防火分区,仅对末端点位进行移位改避
二、设计做据
1.《建筑设计防火规范》 GB50016-2014(2018版)
2《建就内部装修设计防火观范万 GB50222-2017 一下
3.《建筑内部装修防火施工及验收靓范》 GB50354-2005
4.《建筑装饰装修工程质量验收标准》 GB50210-2018
5.《建筑照明谩计标准》 GB50034-2013
6.《消防应急照明和疏散指示系统技术标准》 GB51309-2018
7.《火灾自动报警系统谩计规范》 GB50116-2013
8.《自动喷水灭火系统设计规范》 GB50084-2017
9.《消火检给水及消火栓系统技术规范》 GB50974-2014
10.《建筑防烟排烟系统技术标准》 GB51251-2017
1.《建筑火器配置设计规范》 GB50140-2005
12、《民用建镇电气设计标准》 GB51348-2019
13.《民用建筑工程室内环境污染控制标准》 GB50325-2020
2、平面布置
1)本项目层防区用楼防划分防火分区
2)储藏功能房间、厨房、配电间、设备用房、电梯境、楼梯间、前室的境体满足时火极限2.0h
3)储藏功量房间,封闭楼梯间应采用乙级防火门:电梯机房、强弱电问及设备机房应采用甲级防火门:管井采用丙级防火门。
4)所有的疏散门净宽均不小于1.4m。
5)玻璃断采用安全玻璃的原则和相关要求,并标明“各类、室内、易遭受撞击而造成人体伤害的其他部位必须使用安全玻璃”。
3、安全疏
3.1. 疏散距离
1)依据《建筑设计防火规范》GB50016-2014(2018版)中
5.5.17的规定,本项目设有自动喷水灭火系统保护安全疏散距离可以增加25%,详见平面布置图。
2、布置
1)本项目层防区用楼防划分防火分区
2)储藏功能房间、厨房、配电间、设备用房、电梯境、楼梯间、前室的境体满足时火极限2.0h
3)储藏功量房间,封闭楼梯间应采用乙级防火门:电梯机房、强弱电问及设备机房应采用甲级防火门:管井采用丙级防火门。4)所有的疏散门净宽均不小于1.4m。
5)玻璃断采用安全玻璃的原则和相关要求,并标明“各类、室内、易遭受撞击而造成人体伤害的其他部位必须使用安全玻璃”。
3、安全疏散
3.1. 疏散距离
1)依据《建筑设计防火规范》GB50016-2014(2018版)中
5.5.17的规定,本项目设有自动喷水灭火系统保护安全疏散距离可以增加25%,详见平面布置图。
_3.2.疏散宽度
1)详见面布置图。
2本建第安全疏散口分散布置。每个防火区、一个防火区的每个楼层,其相邻2个安全出口最近边缘之间的水平距离>5m.
3)每楼火驱、一带火分区的每不楼层。其按奎☐的数量不杆2。 本建筑内的楼梯荫均采用防烟楼梯间,楼梯同内均装置正压送风统。本次装惨不政动原有防烟楼梯闫设计。




咏佐建设:专注建筑装饰,装修设计、施工,工程项目代建代办咨询服务;旗下资质:建筑 规划 消防 装修 照明 强弱电 电力 道路 桥梁 幕墙 钢结构 园林市政 绿化 电子智能化 机电 环保 防水腐保温隔热 等工程设计施工资质;◇监理服务。
服务中小企业:致力于让天下没有难做的工程。让天下没有难做的设计。本公司汇集数百名工程技术人员。数十位高级专家,建筑、结构、幕墙、电力、给排水、装饰、机电、自动化、暖通、造价、建筑装饰装修专业人才门类齐全,实力雄厚,10000+服务过的客户见证。遍布全国数百家分公司的布局,更好的服务社会各界!
服务热线:021-3389 7758 ;15505051172 15901992096(微信同号)

